CASA F_PieT 




Autor: lab arquitectura

Director de diseño: Arq. Israel Diaz

Gto, México - 2020, En construccion


Casa F-PIET

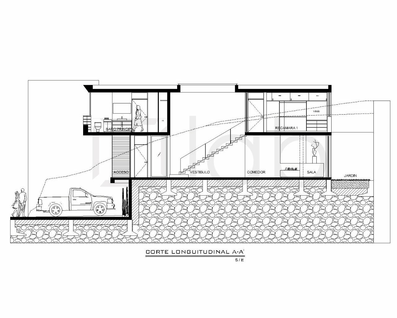
En la zona este de León, Guanajuato, surge Casa F-PIET, un proyecto que dialoga con la pendiente natural de un terreno ascendente con siete metros de desnivel. Más que imponerse, la casa se adapta y se empotra tres metros bajo el nivel original, como si naciera de la propia tierra, para después elevarse con ligereza y dar forma a una fachada que parece flotar, resaltando su elegancia, con acabados en mármol y amplios ventanales que permiten la entrada de luz natural.

El diseño se despliega en tres niveles que marcan un recorrido ascendente. En su interior, los espacios se abren con generosidad, acompañados de un vestíbulo a doble altura que permite una conexión visual desde cada punto de la casa, invitando a la luz y a la amplitud a ser parte de la vida diaria.



PROYECTO ARQUITECTONICO