FABRICA 2.0 




Autor: lab arquitectura

Director de diseño: Arq. Israel Diaz

Gto, México - 2015


FABRICA 2.0

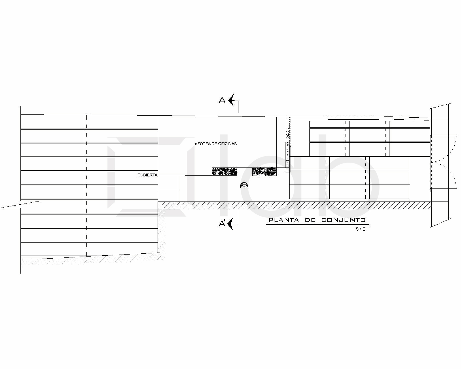
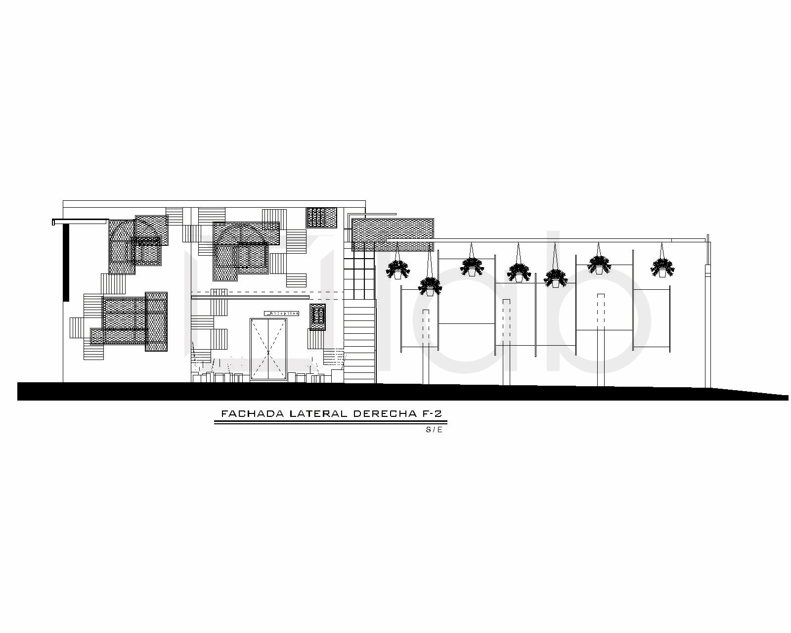
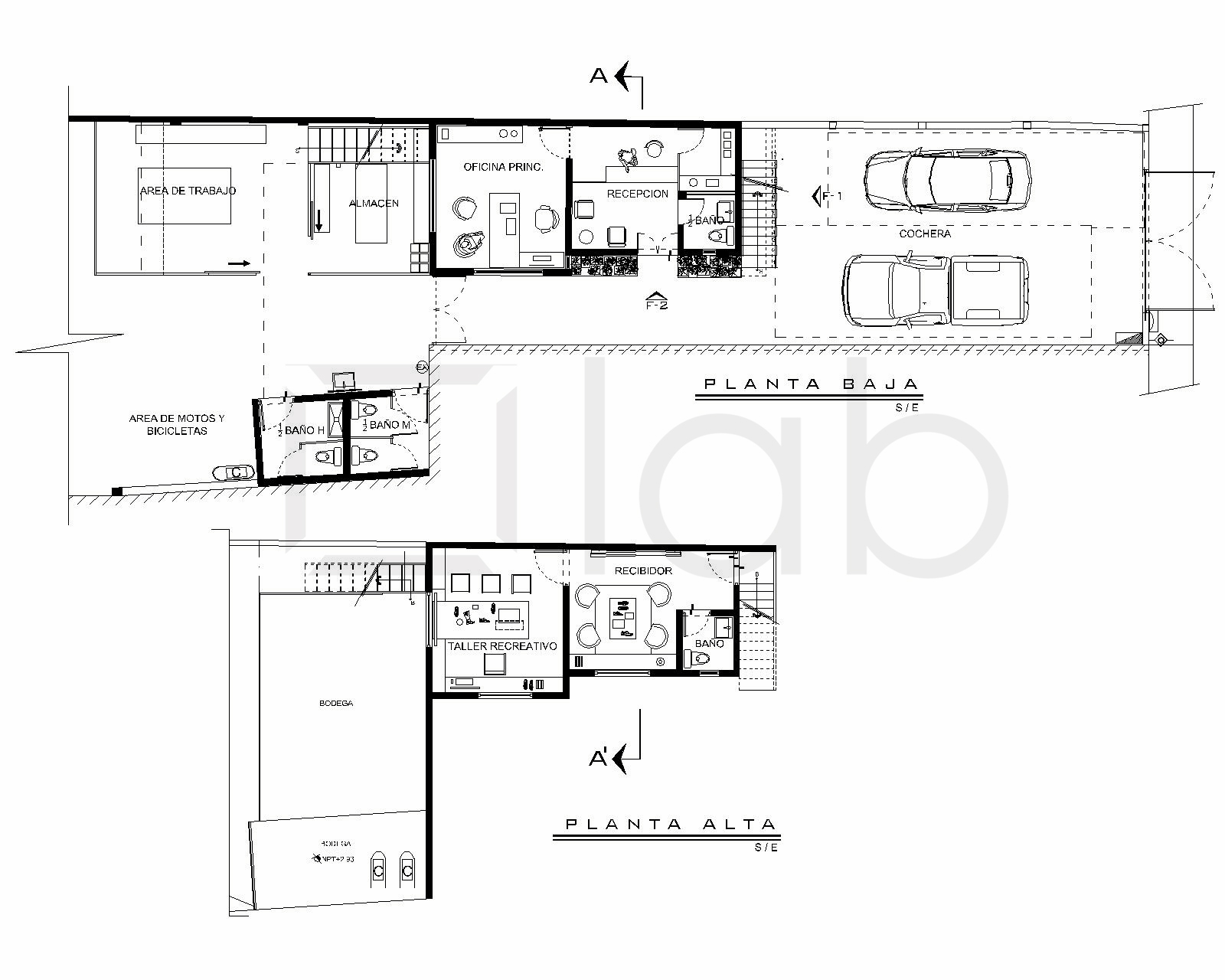
Fábrica de Calzado 2.0 surge de la necesidad de optimizar recursos y transformar limitaciones en oportunidades creativas. Con un enfoque responsable hacia el medio ambiente, el proyecto apuesta por demostrar que un espacio reducido puede generar un impacto mayor que una gran estructura.

La mayor parte del presupuesto se destinó a rehabilitar instalaciones hidráulicas, sanitarias y áreas operativas, lo que llevó a buscar soluciones ingeniosas para la ambientación estética. La respuesta estuvo en el propio lugar: reutilizar materiales de la fábrica —tarimas de madera, botes de lámina, garrafones plásticos, puertas, tabique, metal y mobiliario existente— otorgando nueva vida a lo que parecía desecho.

El resultado es un espacio funcional, consciente y con carácter, que refleja la visión de una industria que evoluciona hacia la sostenibilidad.


PROYECTO ARQUITECTONICO


PROCESO DE OBRA