Restaurant Aroma y Sabor 




Autor: lab arquitectura - Suunnittelu

Restaurante café, aroma y sabor

San Francisco del Rincón Gto.

Tiempo de Ejecución: tres semanas

Aroma y Sabor

Diseñar con casi nada, es descubrir que la arquitectura trasciende al edificio, y se convierte en un acto de respeto, memoria y audacia.

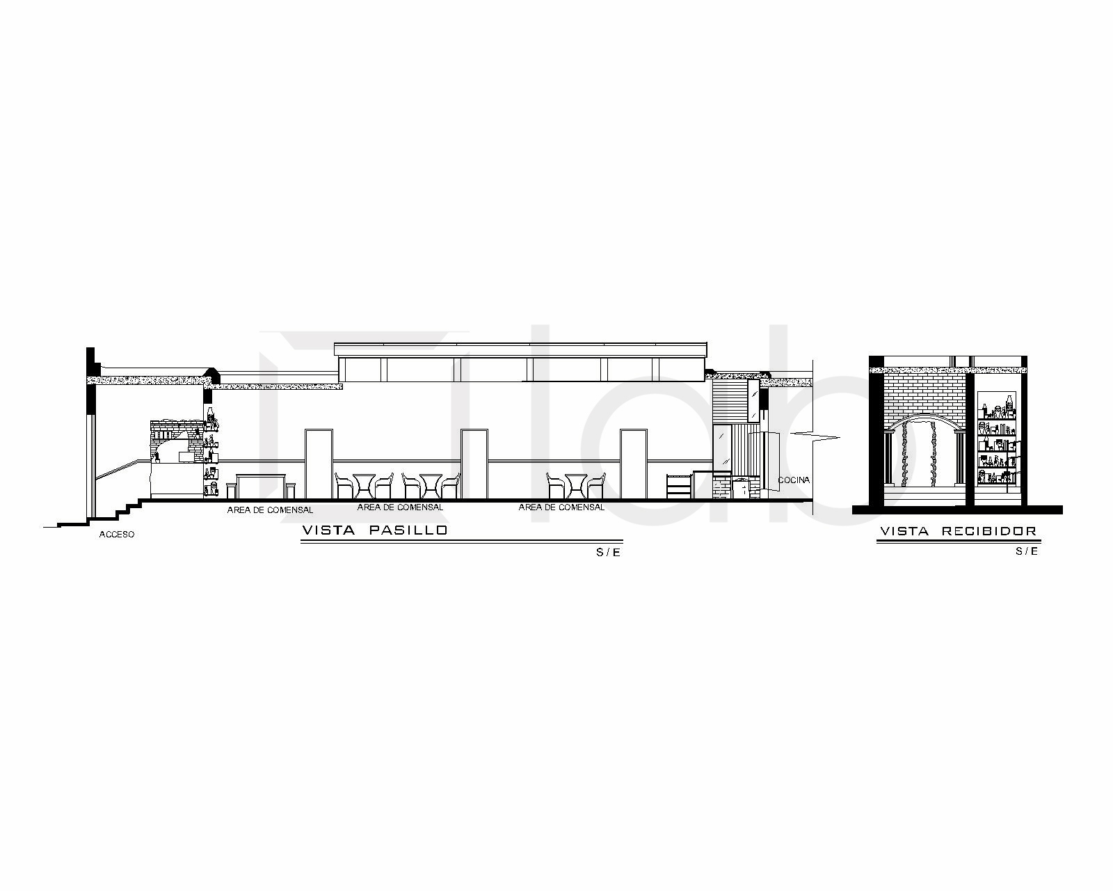
El restaurante-café Aroma y Sabor, con casi 165 m² y raíces en los años setenta, conserva la identidad local como un eco del tiempo que se niega a desaparecer. Sus muros de ladrillo antiguo, pisos coloridos, losas con sistema de dovela y remates de vanos con vigas durmientes, que te recuerdan la calidez de un origen compartido.

El reto fue abrazar la austeridad: un presupuesto y un calendario precisos que exigieron creatividad en lugar de exceso. Así, cada acción fue pensada con rigor, destinando la mayor parte de los recursos a rehabilitar las áreas e instalaciones que el paso de los años había desgastado.

El proyecto nace desde la sustracción, rescatando la energía del lugar y dialogando con su memoria, para revelar una nueva presencia sin renunciar a su esencia. Aroma y Sabor es, en su recorrido, una secuencia espacial que nos invita a acercarnos al pasado y saborearlo en el presente.


PROYECTO ARQUITECTONICO